北京润园多宝体育- 多宝体育官网- APP下载 华润后沙峪低密墅区 优山美地旁 容积率低至101

发布日期:2025-10-01 13:05:08 浏览次数:

  多宝体育,多宝体育官网,多宝体育下载,多宝体育登录,多宝体育app,多宝体育网址,多宝体育登录,多宝体育靠谱吗,多宝官网,多宝网址,多宝注册,多宝真人,多宝游戏这一命名既延续了华润“润系”高端产品线的基因,也呼应了项目所处温榆河畔的生态意境,传递出“城市谧境、大隐于园”的居住理想。

  该项目于2025年2月27日由华润置地以60.24亿元底价成功摘得,地块编号为顺义后沙峪SY00-2101-2007、2008,地处北京中央别墅区核心腹地。

  项目容积率低至1.01,限高24米(局部27米),不仅是2013年“限墅令”出台以来北京罕见的低密纯墅区,更是当前市场上极为稀缺的可售纯新别墅项目,未入市已成焦点。

  中央别墅区,北京最早的高档别墅群落;后沙峪作为北京中央别墅区的核心板块,凭借其私密度的居住环境、国际化的配套设施以及优越的生态资源,成为高净值人群的首选居住地。

  2025年2月27日,华润置地以底价60.24亿元,摘得顺义温榆河2101-2007、2008地块——后沙峪老牌别墅的核心,限高24米(局部27米),楼面价3.5万/㎡,容积率仅为1.01。

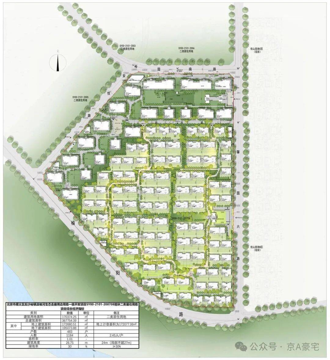
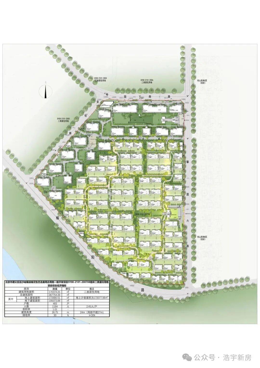
  社区占地17.04万㎡,建筑面积17.21万㎡,容积率1.01,共483户,产品种类分三类,具体如下:

  洋房:总高8层,层高3.3米,分2种面积,271㎡80套,325㎡175套,共255套,均为四居室,面宽达到了17米,其中271户型更是做到了3个卧室朝南,328户型边厅的设计做到了动静分离。

  双拼别墅:上三下二结构,有4个面积:339㎡47套、389㎡52套、439㎡44套、489㎡47套,共190套,以上面积是纯地上面积;

  目前建筑面积定在700-900㎡,也就是地上+地下,还有部分赠送,整体使用面积在800-1100㎡,单层面积可做到200+,一层带花园170-310㎡。

  4个户型总共分两类,分为两面宽以及三面宽:其中340/390户型做的是两面宽,四居室中有3个卧室朝南,440/490户型做的是三面宽,五个卧室全部朝南,四个户型全部带有挑空。

  北京润园,中央别墅区后沙峪核心位置的新项目,位置无可比拟,与优山美地等老牌别墅左右为邻,紧挨ISB等高端国际学校,商圈内近10年内的唯一新盘,

  “潤園”是华润对“匠心筑家”理念的诠释——从低密规划到建筑细节,从园林营造到居住体验,皆以“润”养生活、以“園”藏美好!

  此次的北京润园,不仅是温榆河一块低密宝地,更是落子于北京传统豪宅腹地——中央别墅区,地段含金量不言而喻。

  这里,是北京高净值人群最集中的区域之一,汇聚了大量企业主、外企高管、国际家庭,圈层氛围成熟,资产价值稳固。

  项目隔壁便是顶级豪宅社区优山美地,其独栋别墅普遍总价过亿,不少房源早已成为“一个小目标起步”的代名词,圈内地位可见一斑。

  教育资源同样顶尖:北京鼎石学校、顺义国际学校(ISB)、北京新英才学校、北京英国学校(BSB),这些国际名校环绕周边,一年学费动辄二三十万元,吸引大量外籍家庭与高端海归家庭长期定居,形成了稳定而优质的居住生态。

  生活配套方面,项目距祥云小镇、罗马湖均在3公里以内,商业、休闲、餐饮一应俱全;

  南侧紧邻温榆河生态绿廊,自然环境优越,真正实现了“出则繁华,入则宁静”。

  更难得的是,区域内所有配套均已成熟落地,无需等待规划兑现——道路通达、商圈成型、学校运营多年,生活氛围浓厚,是典型的“现成高配”板块。

  2、龙湾别墅产品类型涵盖平层与叠拼,低价位房源也要1000多万,主流总价在2000万至3000万之间。

  随着产品迭代,不少老别墅业主面临设施陈旧、户型落后、得房率低等问题,正有置换升级的需求。

  而华润此次打造的「北京润园」,凭借1.01超低容积率、全新产品设计、现代精装标准与科技系统,有望成为区域内老业主“以旧换新”的首选目标。

  若华润持续深耕,不排除未来将连片开发,形成规模化的“润系”低密住区,进一步提升品牌影响力与板块话语权。

  目前,华润项目北约6公里处的懋源云纪,已实现网签34套,网签均价约6.1万元/㎡。

  考虑到市场竞争环境及客户接受度,预计「北京润园」的开盘价格将与之对标,大概率维持在6万-6.5万元/㎡区间。若定价过高,或将面临去化压力;若定价合理,则有望凭借产品力实现“开盘即热销”。

  中央别墅区SY00-2101-2007、2008地块二类居住用地 历经了7个月的预热终于公布了案名了:北京润园 中央别墅区临河墅区收官之作,

  北京润园是华润置地 2025 年重磅推出的高端作品,落子顺义中央别墅区核心腹地,紧邻温榆河生态绿廊,与顶级豪宅优山美地隔街相望。项目以 1.01 的超低容积率(2013 年限墅令后北京罕见)、限高 24 米的规划,打造 19 栋 8 层洋房与 92 栋双拼别墅,共计 483 户纯粹大宅社区,定位高净值人群的终极改善之选。

  :临近机场高速、京承高速、京平高速,30 分钟直达国贸 CBD,20 分钟抵达首都机场,快速衔接望京、丽泽等核心商圈。

  :距规划中的地铁 S6 号线(连接大兴 / 首都双机场)约 3 公里,周边 1 公里内有 915 路、980 路等公交接驳顺义城区,适合搭配自驾的出行模式。

  3 公里范围内聚集北京鼎石学校、顺义国际学校(ISB)、北京英国学校(BSB)等顶尖国际校,学费约 20-30 万元 / 年,覆盖从幼儿园到高中的全龄教育,外籍家庭与高端海归家庭定居密度极高。此外,公立校顺义后沙峪中心小学、北师大附属实验中学顺义分校也在 5 公里辐射圈。

  商业配套:3 公里内有祥云小镇(轻奢商业 + 餐饮集群)、罗马湖商圈(网红餐饮 + 艺术市集),满足日常消费与社交需求;10 公里可达顺义山姆会员店、中粮祥云小镇二期(规划中)。

  生态资源:南侧紧邻温榆河生态绿廊,步行 10 分钟可达滨河步道;周边 5 公里内有罗马湖公园、温榆河湿地公园,生态覆盖率超 40%,堪称 “城市绿肺”。

  引入华润全国首家 “礼仕服务” 物业,提供 24 小时管家、定制家政等增值服务;

  项目全系为 271㎡以上大宅,无刚需户型,聚焦纯改善需求,具体分为三大产品线. 双拼别墅(共 190 套,340-490㎡)

  :地上 3 层 + 地下 2 层,户户南北通透,一层设老人房(带独立卫浴),二层为儿童房区域,三层为主卧总统套间(含书房、步入式衣帽间、卫浴四件套)。

  稀缺性凸显:1.01 容积率的纯新墅区在北京已近绝迹,中央别墅区近 5 年无同类新盘供应,二手别墅(如优山美地)总价多在 4000 万以上,且户型陈旧。

  门槛极高:起步户型 271㎡洋房总价约 2800 万,双拼别墅总价 4000 万起,首付需 1400 万以上,仅限高净值人群可承受。

  平台声明:该文观点仅代表作者本人,搜狐号系信息发布平台,搜狐仅提供信息存储空间服务。