多宝体育- 多宝体育官网- APP下载两层轻钢别墅实景优质还原

发布日期:2025-10-23 17:46:00 浏览次数:

  多宝体育,多宝体育官网,多宝体育下载,多宝体育登录,多宝体育app,多宝体育网址,多宝体育登录,多宝体育靠谱吗,多宝官网,多宝网址,多宝注册,多宝真人,多宝游戏您当前使用的浏览器版本过低,可能存在安全风险,建议升级浏览器,或者用以下浏览器浏览

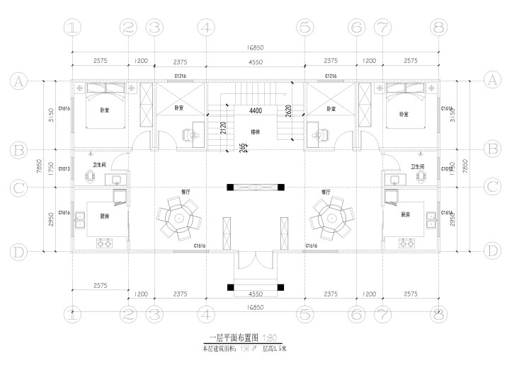
  比起传统建筑,轻钢别墅在风格上确实略胜一筹,除了本身定制化生产、风格多样之外,轻钢别墅的设计图也有点不一样。 这栋房子占地136平方米,层高1.5米,一层进门两边是餐厅,中间直达2层的楼梯,楼梯旁是两个卧室,可以看出这是一栋双拼别墅,左右两边极其对称,一层有四个卧室,基本可以满足一家人的居住需求,家

  比起传统建筑,轻钢别墅在风格上确实略胜一筹,除了本身定制化生产、风格多样之外,轻钢别墅的设计图也有点不一样。

  这栋房子占地136平方米,层高1.5米,一层进门两边是餐厅,中间直达2层的楼梯,楼梯旁是两个卧室,可以看出这是一栋双拼别墅,左右两边极其对称,一层有四个卧室,基本可以满足一家人的居住需求,家里有老人的话进出也比较方便。

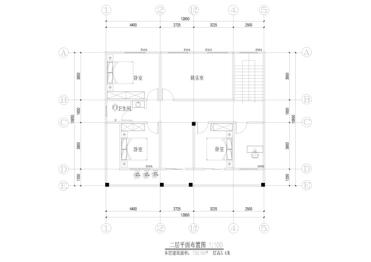
  双排别墅的第二层,也有三个卧室,还有一个娱乐室,有年轻人的生活空间,也有老年人的生活空间,很适合一家老少的大家族居住。

  这栋房子是55.5平方米的小户型,别看占地面积小,结构还是安排得很合理,一层基本上就是客厅、厨房、餐厅、卫生间,卧室主要安排在第二层,可以看出这是一栋复式别墅,很适合当前年轻人的居住方式。

  这张平面图就是复式别墅的第二层了,有一个主卧、一个次卧,还有阳台、卫生间,虽然占地面积不大,但是居住也是非常舒适的。

  以上就是双排别墅和复式别墅的设计图,可以看一下下面的实景图怎么样,从设计图到实景图,轻钢别墅优质还原,打造出了一个不一样的时尚空间。

  声明:本文由入驻焦点开放平台的作者撰写,除焦点官方账号外,观点仅代表作者本人,不代表焦点立场。

  “基于 AI 与双碳全场景的智能系统工程师” 年度收官培训在武汉圆满落幕

  2025年武汉举办AI与双碳智能系统工作师培训,汇聚多方专家,聚焦智能照明与AI应用,推动行业创新发展。

  九千高定以东方美学为核心,注重空间意境与情绪价值,引领湖北高定发展,追寻“智造”与“文化归属”。

  市场监管总局发布《智能床垫》国标,规范功能、安全与健康监测,推动行业标准化发展。

  “好房子・绿色家居生活”研讨会暨易科洛捷创新实践考察行成功举办

  宁波易科洛捷厨电举办绿色家居生活研讨会,展示垃圾处理器创新技术,提升绿色家居生活。

  根据武汉市住房保障和房屋管理局数据显示,2025年09月07日武汉新建商品房成交169套,较昨日减少133套,环比下降44%

  郑重提示:本网站作为房产信息聚合类导航网站,仅为方便广大用户掌握信息而提供一站式无偿浏览、查阅的功能,本站楼盘信息并非广告,最终请以政府部门登记备案及开发商公布为准。错误信息举报电话,邮箱。 或点此进行意见反馈,也可点此进行举报投诉。